Коммерческие, административные и общественные помещения (бизнесцентры, торговые, образовательные учреждения, гостиницы, общепит и т.д.)
Современная альтернатива обычному гипсокартону с штукатуркой и покраской
Коммерческие, административные и общественные помещения (бизнесцентры, торговые, образовательные учреждения, гостиницы, общепит и т.д.)
Современная альтернатива обычному гипсокартону с штукатуркой и покраской
Различные помещения в спортивных и образовательных учреждениях (коридоры и спортзалы в учебных заведениях, спортивные секции и др.)
Повышенная прочность, влагостойкость и звукоизоляция
Различные помещения с повышенными требованиями к пожарной безопасности (пути эвакуации в школах, больницах, торговых центрах и прочих общественных объектов)
Повышенная огнестойкость и влагостойкость
Образовательные и административные учреждения, бизнес-центры, офисные помещения, рестораны, коттеджи и др
Бюджетная альтернатива панелям из натурального шпона
Любые помещения медучреждений кроме чистых (лечебные и процедурные кабинеты, коридоры, холлы, лаборатории, палаты пациентов и т.д.)
Устойчивость к обработке дезинфицирующими растворами
Образовательные и административные учреждения, бизнес-центры, элитные жилищные комплексы и др.
Премиумный внешний вид, надежность и долговечность
Коммерческие, административные и общественные помещения (бизнесцентры, торговые, образовательные учреждения, гостиницы, общепит и т.д.)
Бюджетная альтернатива традиционной отделки
Система декоративных монтажных профилей, предназначенных для крепления декоративных стеновых панелей (на любых основах: ГКЛ, СМЛ, ГВЛ, ГСП, ГМЛ). Включает в себя стартовый и стыковочные профили (L, H, Омега, ПИ, Т). Окрашивается в любой цвет по каталогу RAL.
В наших реализованных проектах для офисов и бизнес-центров мы создали эффективные рабочие пространства, которые повышают продуктивность команд и укрепляют имидж компаний-заказчиков.
Реализованные нами проекты для административных учреждений – это функциональные и долговечные интерьеры, формирующие достойный облик и обеспечивающие эффективную работу организаций.
Наши завершенные проекты отделки торговых помещений успешно привлекают покупателей и создают оптимальные условия для роста продаж и развития бизнеса клиентов.
Для медицинских учреждений мы реализовали проекты, отвечающие строгим стандартам гигиены и комфорта, способствуя качественному лечению и удобству пациентов и персонала.
В реализованных проектах для ЖК и апартаментов мы создали стильные и практичные общественные зоны, повышающие комфорт жителей и привлекательность недвижимости.
Наши успешно завершенные проекты для спортивных комплексов – это безопасные, функциональные и мотивирующие пространства, созданные для достижений и активного отдыха.
Реализованные нами интерьеры для гостиниц и отелей создают неповторимую атмосферу гостеприимства, обеспечивая комфорт гостей и способствуя успеху бизнеса.




- Декоративные панели для быстрой отделки стен
- Износостойкие двери с покрытием CPL/HPL
- Подвесные потолки различных цветов и размеров
- Декоративные панели для быстрой отделки стен
- Износостойкие двери с покрытием CPL/HPL
- Подвесные потолки различных цветов и размеров
- Декоративные панели для быстрой отделки стен
- Износостойкие двери с покрытием CPL/HPL
- Подвесные потолки различных цветов и размеров
- Декоративные панели для быстрой отделки стен
- Износостойкие двери с покрытием CPL/HPL
- Подвесные потолки различных цветов и размеров
- Декоративные панели для быстрой отделки стен
- Износостойкие двери с покрытием CPL/HPL
- Подвесные потолки различных цветов и размеров
- Декоративные панели для быстрой отделки стен
- Износостойкие двери с покрытием CPL/HPL
- Подвесные потолки различных цветов и размеров
- Декоративные панели для быстрой отделки стен
- Износостойкие двери с покрытием CPL/HPL
- Подвесные потолки различных цветов и размеров
- Декоративные панели для быстрой отделки стен
- Износостойкие двери с покрытием CPL/HPL
- Подвесные потолки различных цветов и размеров
Рассчитаем объёмы по Вашим ТЗ и планировкам
L-профиль
Омега+Т-профиль
Омега+ПИ-профиль
F-профиль
Применяется для соединения стеновых панелей между собой. Используется как для вертикальных, так и для горизонтальных соединений. Для нарезки используется торчовочная пила с диском по металлу или алюминию.
алюминий, металл
порошковая краска, лак
матовый, глянец
3000 мм
по каталогу RAL
*цена зависит от цвета и объёма заказа
Применяется для соединения стеновых панелей между собой. Используется как для вертикальных, так и для горизонтальных соединений. Для нарезки используется торчовочная пила с диском по металлу или алюминию.
алюминий, металл
порошковая краска, лак
матовый, глянец
3000 мм
по каталогу RAL
*цена зависит от цвета и объёма заказа
Применяется для соединения стеновых панелей между собой. Используется как для вертикальных, так и для горизонтальных соединений. Для нарезки используется торчовочная пила с диском по металлу или алюминию.
алюминий, металл
порошковая краска, лак
матовый, глянец
3000 мм
по каталогу RAL
*цена зависит от цвета и объёма заказа
Применяется для оформления внутренних углов стеновых панелей, а также для защиты краев снизу, если не предусмотрен плинтус и сверху, если не предусмотрен подвесной потолок.
алюминий, металл
порошковая краска, лак
матовый, глянец
3000 мм
по каталогу RAL
*цена зависит от цвета и объёма заказа
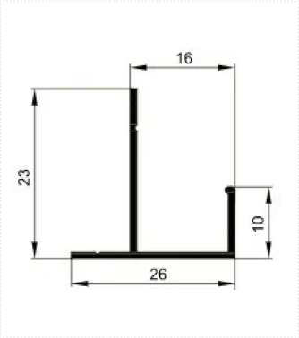
Применяется для оформления внешних углов стеновых панелей. Для нарезки используется торчовочная пила с диском по металлу или алюминию.
алюминий, металл
порошковая краска, лак
матовый, глянец
3000 мм
по каталогу RAL
*цена зависит от цвета и объёма заказа
Уникальная разработка от Ласпан для замены обычных плинтусов. Применяется для оформления нижней части стеновых панелей с примыканием к полу.
алюминий, металл
порошковая краска, лак
матовый, глянец
3000 мм
по каталогу RAL
*цена зависит от цвета и объёма заказа
Применяется для соединения стеновых панелей между собой. ПИ-крышка изготавливается из пластика пропускающего свет, что позволяет установить в профиль светодиодную ленту.
алюминий, металл
порошковая краска, лак
матовый, глянец
3000 мм
по каталогу RAL
пластик
белый
*цена зависит от цвета и объёма заказа
Отделка возможна даже в холодное время в неотапливаемых помещениях. Минимум грязи и строительного мусора, не нужно вывозить и накрывать мебель
Для монтажа используется стандартный набор инструментов и крепежа. Технические специалисты компании помогут с обучением монтажной бригады в любом городе на всех этапах проведения работ, посредством телефонной или видеосвязи.
Для монтажа используется стандартный набор инструментов и крепежа. Технические специалисты компании помогут с обучением монтажной бригады в любом городе на всех этапах проведения работ, посредством телефонной или видеосвязи.
Опишите проект и Ваши пожелания
Оно успешно отправлено и наш менеджер скоро свяжется с Вами